Bản vẽ thiết kế nhà phố mặt tiền 6m đẹp được các Kiến trúc sư của chúng tôi triển khai và diễn hoạ theo phong cách tân cổ điển. Với sự sang trọng và tinh tế
Hãy liên hệ với chúng tôi để được tư vấn thi công xây dựng và thiết kế nhà ở, thiết kế biệt thự kiểu Pháp, thiêt kế lâu đài kiểu pháp, thiết kế thi công nội thất, thiết kế khách sạn, thiết kế nhà hàng, thiết kế dự án lớn ...
Chủ đầu tư:Chú Minh
Địa điểm:Hà Đông, Hà Nội
Loại hình:Thiết kế nhà phố mặt tiền 6m phong cách tân cổ điển
Diện tích khu đất:84m2
Diện tích xây dựng:500m2
Số tầng:Thiết kế nhà phố mặt tiền 6m
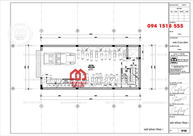
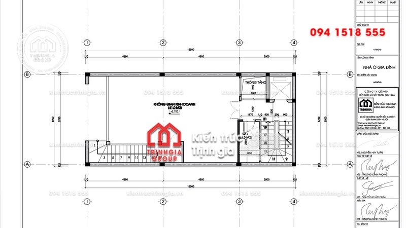
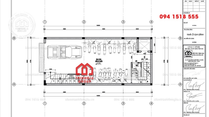
Công năng:Tầng 1: Để xe, wc, thang máy. Tầng lửng: Cho thuê kinh doanh, wc chung. Tầng 2, tầng 3 cho thuê kinh doanh. Tầng 4: có 3 phòng ngủ, 1 master, 1 wc chung. Tầng 5: khách, bếp , ngủ ông bà, wc chung
Đơn vị thiết kế:Kiến trúc Trịnh Gia
Tổng mức đầu tư:5,8 tỷ đồng
Năm thực hiện:2019
Thông tin liên hệ:
- Công ty Cổ phần Kiến trúc Xây dựng Nguyễn Tuấn
- Liên hệ: Nguyễn Tuấn
- Phone: 0908 562 750
- Email: contact.vietblogger@gmail.com
- Website: www.vietblogger.design
Hãy liên hệ với chúng tôi để được tư vấn thi công xây dựng và thiết kế nhà ở, thiết kế biệt thự tân cổ điển, thiêt kế lâu đài kiểu pháp, thiết kế và thi công nội thất, thiết kế khách sạn, thiết kế nhà hàng, thiết kế shop, cửa hàng, showroom …







