Mẫu thiết kế biệt thự dạng nhà cấp 4 đẹp và độc thường dành cho các gia đình sở hữu những mảnh đất rộng lớn, thích không gian mộc mạc mà vẫn đầy đủ tiện nghi, được hòa mình vào không gian và hưởng thụ các vẻ đẹp thiên nhiên.
Sau đây, với mẫu thiết kế biệt thự cấp 4 mái Thái đẹp sau chắc chắn sẽ làm hài lòng quý vị. Mời các bạn cùng chiêm ngưỡng vẻ đẹp của ngôi nhà cấp 4 đẹp.
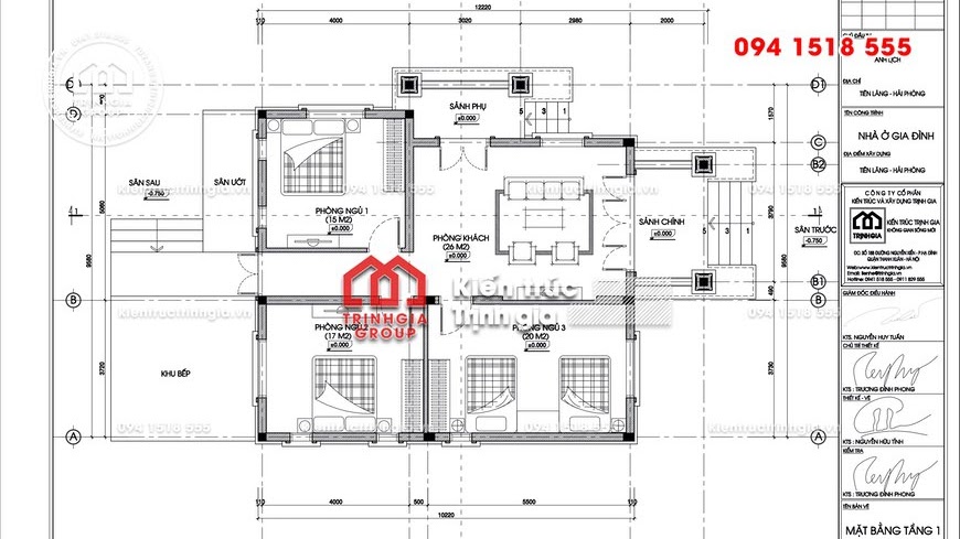
Một số hình ảnh thiết kế của bản vẽ mẫu nhà cấp 4 đẹp ở Kiến An, Hải Phòng.
1. Thông tin chung về mẫu nhà cấp 4 mái Thái
Theo như mong muốn được tư vấn, khảo sát và thiết kế của gia đình chủ đầu tư, Kiến trúc Trịnh Gia chúng tôi nhận được yêu cầu thiết kế một mẫu nhà cấp 4 mang phong cách hiện đại trên một mảnh đất rộng lớn, ngoài diện tích xây dựng nhà ở còn diện tích để trồng cây cỏ, sao cho được chìm trong không gian sống được xanh, mát lành. Sau những bàn bạc, lên ý tưởng và thống nhất về kiểu dáng, mẫu mã cũng như công năng tiện ích từng tầng, mẫu biệt thự cấp 4 mái Thái được hình thành và đem lại những ưng ý nhất định cho gia chủ. Mời các bạn cùng theo dõi và nắm bắt thông tin:
2. Phối cảnh 3D chi tiết về mẫu nhà cấp 4 mái Thái
Với phong cách thiết kế hiện đại, đơn giản hóa từng chi tiết và tạo ra không gian yên tĩnh, bình lặng giữa cuộc sống đầy bộn bề. Khi ngắm nhìn ngôi nhà và sinh sống trong ngôi nhà tuyệt vời như vậy, bất cứ ai cũng sẽ có cảm giác thoải mái, tuyệt vời và yên bình như được rũ bỏ hết muộn phiền cuộc sống. Đặc trưng là mặt tiền rộng rãi với nhiều khối nhà, cảm giác mà ngôi nhà mang đến cho bất kì ai là sự khoáng đạt, thảnh thơi.
Những đường nét kiến trúc sắc sảo và tinh tế đi kèm những tông màu nổi bật tưởng chừng đối lập mà lại hòa quyện trọn vẹn vào nhau. Sắc cam đất đầy hơi thở thiên nhiên hòa quyện với màu xanh lá khiến tinh thần cực kì thoải mái, còn phần mái nhà sử dụng màu xanh như màu của bầu trời, cảm giác giao thoa giữa đất và trời cực kì đặc sắc. Màu tường vàng kem tạo cảm giác hết sức đẹp mắt, giúp ngôi nhà tỏa sáng hơn hẳn trong nắng.
Chân tường và chân bồn hoa ngôi nhà cấp 4 mái Thái được ốp gạch màu đá cam, nâu nhạt xen kẽ sinh động. Phần này có tác dụng bảo vệ phần chân chống khỏi các tác động của nước mưa, mối mọt và rêu mọc đáng kể.
Điểm đặc biệt trong thiết kế ngôi nhà đầu tiên phải kể đến phần sảnh với mái Thái ngoài sảnh trước nhà, phần này được bố trí xuống 4 cạnh, hai cột trụ đứng tròn trơn chống đỡ phần mái tạo cảm giác vững chắc. Chân cột được nhấn bằng khối vuông chắc chắn với gạch ốp cam đất xung quanh độc đáo. Phần bậc tam cấp bước lên với đá hoa cương cao cấp ốp sàn và hai bên là phần tường gấp khúc tạo chỗ đặt 2 chậu hoa làm ngôi nhà đầy sức sống.
Cạnh sảnh chính là sảnh phụ được bố trí dàn hoa để trồng cây dây leo nhằm tạo không gian thơ mộng, tươi mới cho căn nhà. Mỗi khi bước từ ngoài vào hoặc ngồi ở sảnh phụ mỗi người đều cảm thấy thanh thản và tràn trề tinh thần nhiệt huyết.
Hệ thống cửa ban công, cửa sổ, cửa chính được làm bằng chất liệu kính cường lực khung nhôm sơn màu cam. Hệ thống của này được sử dụng loại kính cường lực dày 3mm. Sở dĩ các kiến trúc sư sử dụng hệ thống cửa kính khung nhôm ngoài mục đích tạo sự thông thoáng thì chúng còn đem lại sự kín đáo khi vừa có thể giúp che chắn, bảo vệ nước mưa không bị bắn vào bên trong nhà. Hơn thế nữa, dù bất kỳ trong kiểu thời tiết nào thì các thành viên trong gia đình gia chủ vẫn có những khoảng view đẹp mắt.
Ngoài ra, hệ thống cửa kính còn có tác dụng cách âm, cách nhiệt tốt mà lại sạch sẽ, dễ lau chùi. Riêng đối với các hệ thống cửa chính của mẫu nhà cấp 4 mái Thái được thiết kế với khung bản lề to, dày dặn mang sự chắc chắn cũng như cảm giác an toàn không sợ kẻ xấu nhòm ngó hay có thể xâm phạm được vào không gian bên trong.
Với độ dốc lớn của hệ thống mái của mẫu nhà cấp 4 mái Thái sẽ giúp tăng khả năng thoát nước một cách nhanh chóng.
Từ đó mà tránh được tình trạng đọng nước trên hệ thống mái gây ra tình trạng ấm mốc. Ngoài ra, hệ thống mái Thái này còn có khả năng cách nhiệt, chống thấm nước một cách hiệu quả.
Thiết kế nên mẫu nhà này không chỉ đòi hỏi người kiến trúc sư có khiếu thẩm mỹ mà cần nhiều năm kinh nghiệm, chuyên môn cao để tạo nên một căn biệt thự cấp 4 đẹp như vậy.
Hãy liên hệ với chúng tôi để được tư vấn thi công xây dựng và thiết kế nhà ở, thiết kế biệt thự kiểu Pháp, thiêt kế lâu đài kiểu pháp, thiết kế thi công nội thất, thiết kế khách sạn, thiết kế nhà hàng, thiết kế dự án lớn ...
Chủ đầu tư:Anh Lịch
Địa điểm:Kiến An, Hải Phòng
Loại hình:Bản vẽ nhà cấp 4 đẹp
Diện tích khu đất:200m2
Diện tích xây dựng:80m2
Số tầng:Bản vẽ nhà cấp 4 đẹp 1 tầng
Công năng:3 phòng ngủ, 1 phòng khép kín, phòng khách. Còn bếp ăn tắm tách ra phía sau.
Đơn vị thiết kế:Kiến trúc Trịnh Gia
Tổng mức đầu tư:400 triệu
Năm thực hiện:2019
Thông tin liên hệ:
- Công ty Cổ phần Kiến trúc Xây dựng Nguyễn Tuấn
- Liên hệ: Nguyễn Tuấn
- Phone: 0908 562 750
- Email: contact.vietblogger@gmail.com
- Website: www.vietblogger.design
Hãy liên hệ với chúng tôi để được tư vấn thi công xây dựng và thiết kế nhà ở, thiết kế biệt thự tân cổ điển, thiêt kế lâu đài kiểu pháp, thiết kế và thi công nội thất, thiết kế khách sạn, thiết kế nhà hàng, thiết kế shop, cửa hàng, showroom …





