Kiến trúc tân cổ điển trong cuộc sống hiện đại ở Việt Nam
Kiến trúc tân cổ điển ngày càng nhận được sự quan tâm của mọi người bởi vẻ đẹp sang trọng cũng như sự tiện nghi cho căn nhà. Sự giao thoa giữa kiến trúc cổ điển và hiện đại tạo nên một kiến trúc tân cổ điển độc đáo và cá tính. Nhẹ nhàng tô điểm cuộc sống màu sắc, góp phần tô điểm sự đa dạng trong kiến trúc.![]() |
| Hình ảnh: Mẫu nhà tân cổ điển với màu trắng toát lên vẻ sang trọng |
Mẫu nhà tân cổ điển 2 tầng không những phù hợp với thành phố mà còn phù hợp với nông thôn bởi lối sống không lớn quá vừa đủ một không gian sống nhỏ xinh và ấm cúng cho tất cả các thành viên trong gia đình.
Biệt thự tân cổ điển 2 tầng đẹp
Mẫu biệt thự tân cổ điển 2 tầng thu hút từ ánh nhìn đầu tiên bởi sự đơn giản mà nó mang lại cũng như một không gian sống nhỏ xinh đủ để dành sự quan tâm tới tất cả thành viên trong gia đình. Hơn hết, một khu vườn xinh xắn mang đến không gian xanh là sự kết hợp hài hòa giữa cuộc sống và thiên nhiên.![]() |
| Hình ảnh: Đội ngũ KTS của Trịnh Gia kiến tạo nên các mẫu nhà 2 tầng tân cổ điển đẹp ở Ninh Bình |
Điểm nhấn trong mẫu thiết kế biệt thự tân cổ điển 2 tầng là những hình cột trụ vuông và tròn tạo nên sự chắc chắn, khỏe khoắn cho tổng thể ngôi nhà. Bậc tam cấp cũng rất được chú trọng bởi hệ thống đá ốp cao ráo, sạch sẽ tránh trơn trượt, ẩm ướt vào ngày mưa.
Phối cảnh biệt thự tân cổ điển 2 tầng còn rất được chú trọng ở những cột trụ tròn, những đường nét uốn lượn hoa văn ở phần ban công tạo khoảng mở thêm cảm giác mềm mại uyển chuyển cho toàn bộ ngôi nhà không khô cứng nhưng vẫn đẹp mắt. Không chỉ vậy, những đường chỉ ở các mảng tường cũng tạo được tính thẩm mĩ cao kết hợp với những ô cửa kính lớn vuông văn tạo được sự tinh tế, tươi tắn mang màu sắc hiện đại.
![]() |
| Hình ảnh: Mẫu nhà 2 tầng đẹp với phong cách tân cổ điển nhẹ nhàng |
Hệ thống mái thái chính là điểm nhấn quan trọng nhất cho tổng thể mẫu nhà tân cổ điển hai tầng. Sự đơn giản, trẻ trung năng động như những thanh thiếu niên cá tính năng động đã thu hút rất nhiều người lựa chọn.
Hệ thống mái đẹp mắt, được thiết kế đua ra khoảng 1 đến 1.5 mét giúp những mái nhỏ bao che được phần ban công và các mảng tường của ngôi biệt thự giữ cho tầng luôn được bảo vệ khỏi các tác động của thời tiết. Được trang trí tỉ mỉ, cầu kì bởi từng chi tiết của hệ thống chỉ phào đã mang đến cho gia chủ sự hài long, ứng ý khi sở hữu được một không gian ấm cúng.
![]() |
| Hình ảnh: Sảnh nhà 2 tầng đẹp và sang trọng |
Nhà phố 2 tầng tân cổ điển đẹp
Mẫu nhà tân cổ điển 2 tầng rất ưa chuộng trong cuộc sống hiện đại mà chúng ta không thể không nhắc đến đó chính là mẫu thiết kế nhà phố 2 tầng tân cổ điển đẹp. Sở hữu một căn nhà nhận được sự khen ngợi của mọi người chắc chắn rằng ai cũng sẽ rất hãnh diện với bà con xung quanh.Từ đây chúng ta có thể thấy rằng công ty Kiến trúc Trịnh Gia không hề thua kém bất cứ công ty thiết kế xây dựng nào trên cả nước, luôn mang đến cho gia đình bạn một ngôi nhà với thiết kế đẹp và không gian sống tiện nghi.
Thay vì thiết kế nhà phố 2 tầng cổ điển thì rất nhiều khách hàng lựa chọn nhà phố 2 tầng tân cổ điển. Nhà phố tân cổ điển là sự kết hợp hài hòa giữa vẻ đẹp tân cổ điển và hiện đại, hơn nữa nhìn ngôi nhà đẹp và khoa học. Như chúng ta đã biết, chiều rộng của nhà phố không quá lớn, vì vậy khi chúng ta thiết kế theo kiến trúc tân cổ điển sẽ khoa học cũng như không gian sinh hoạt của chủ nhà cũng sẽ thoải mái hơn.
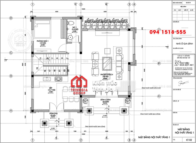
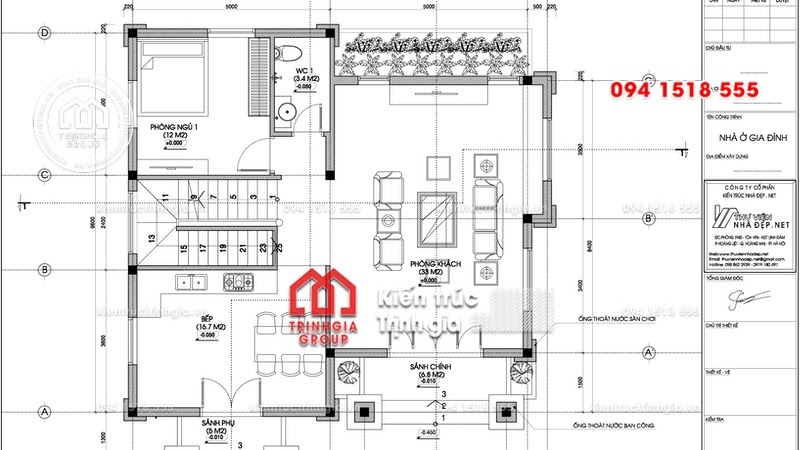
![]() |
| Hình ảnh: Bản vẽ mặt bằng tầng 1, tầng 2 và tầng áp mái của biệt thự 2 tầng |
Không thua kém bất cứ mẫu lâu đài nào bởi không gian tiểu cảnh, mẫu nhà phố 2 tầng tân cổ điển cũng được các nhà kiến trúc sư rất chú trọng không gian xanh bởi hệ thống ban công có thể trồng hoa, đặt những chậu cây cảnh, là nơi thưởng trà, tận hưởng những cảm giác chậm của cuộc sống. Hơn nữa, tận dụng tối đa ánh sáng mặt trời mang lại không gian tươi mát của thiên nhiên vào không gian sống của bạn.
![]() |
| Hình ảnh: bản vẽ thi tiết mặt đứng biệt thự 2 tầng tân cổ điển |
Vẻ đẹp trong phối cảnh chưa cho chúng ta thấy rõ được vẻ đẹp ngoài đời thực của mẫu nhà phố 2 tầng tân cổ điển, nếu bạn đã thấy ngôi nhà này được các khách hàng của chúng tôi xây dựng thì chắc chắn sẽ hạ gục nhiều người với một phong cách kiến trúc hoàn toàn mới mẻ, hiện đại.
![]() |
| Hình ảnh: chi tiết mặt đứng bên của biệt thự tân cổ điển |
Kiến trúc Trịnh Gia với đội ngũ kiến trúc sư tận tâm, tận tình, giàu kinh nghiệm cũng như luôn luôn học hỏi bắt kịp xu hướng thị trường tạo nên những mẫu biệt thự hai tầng tân cổ điển nói chung và những mẫu nhà đẹp khác nói riêng. Chúng tôi luôn tự tin là sẽ tạo nên những không gian sống đẹp, ấm cúng làm hài lòng khách hàng. Không gian sống mới – Kiến trúc Trịnh Gia luôn đồng hàng cùng cuộc sống của bạn.
Hãy liên hệ với chúng tôi để được tư vấn thi công xây dựng và thiết kế nhà ở, thiết kế biệt thự kiểu Pháp, thiêt kế lâu đài kiểu pháp, thiết kế thi công nội thất, thiết kế khách sạn, thiết kế nhà hàng, thiết kế dự án lớn ...
Chủ đầu tư:Anh Dương
Địa điểm:Yên Thịnh, Yên Mô, Ninh Bình
Loại hình:Mẫu nhà tân cổ điển 2 tầng
Diện tích khu đất:180m2
Diện tích xây dựng:240m2
Số tầng:Nhà 2 tầng tân cổ điển
Công năng:Tầng 1: Phòng khách, bếp + ăn, ngủngủ, wc chung
Tầng 2: Phòng thờ, 3 phòng ngủ (có 2 phòng khép kín)
Tầng 3: Kho, sân chơi, sân phơi
Tầng 2: Phòng thờ, 3 phòng ngủ (có 2 phòng khép kín)
Tầng 3: Kho, sân chơi, sân phơi
Đơn vị thiết kế:Kiến trúc Trịnh Gia
Tổng mức đầu tư:2,5 tỷ đồng
Năm thực hiện:2019
Thông tin liên hệ:
- Công ty Cổ phần Kiến trúc Xây dựng Nguyễn Tuấn
- Liên hệ: Nguyễn Tuấn
- Phone: 0908 562 750
- Email: contact.vietblogger@gmail.com
- Website: www.vietblogger.design
Hãy liên hệ với chúng tôi để được tư vấn thi công xây dựng và thiết kế nhà ở, thiết kế biệt thự tân cổ điển, thiêt kế lâu đài kiểu pháp, thiết kế và thi công nội thất, thiết kế khách sạn, thiết kế nhà hàng, thiết kế shop, cửa hàng, showroom …








