Thiết kế nhà phố 50m2 đẹp với phong cách kiến trúc hiện đại. Có 4 tầng và 1 tum đầy đủ tiện nghi, không gian sinh hoạt. Với thiết kế vừa đẹp, vừa rẻ sẽ rất hợp
Hãy liên hệ với chúng tôi để được tư vấn thi công xây dựng và thiết kế nhà ở, thiết kế biệt thự kiểu Pháp, thiêt kế lâu đài kiểu pháp, thiết kế thi công nội thất, thiết kế khách sạn, thiết kế nhà hàng, thiết kế dự án lớn ...
Chủ đầu tư:Anh Lương Anh Sơn
Địa điểm:Xuân Đỉnh, Từ Liêm, Hà Nội
Loại hình:Thiết kế nhà phố 50m2
Diện tích khu đất:230m2
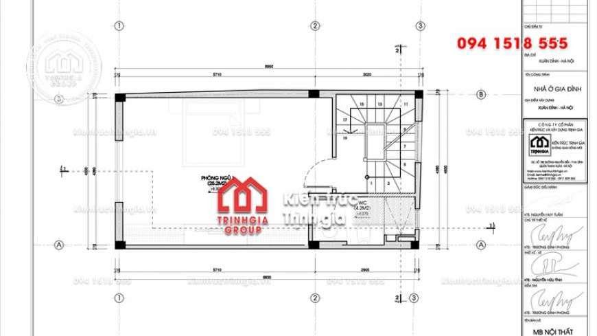
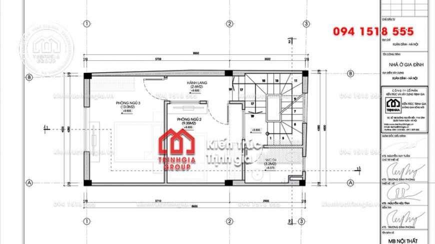
Diện tích xây dựng:50m2 (4,6x9m)
Số tầng:Nhà phố 4 tầng 1 tum
Công năng:Tầng 1: Bếp ăn, sân để xe máy. Tầng 2: Phòng khách, thông tầng. Tầng 3: Có 1 phòng ngủ khép kín. Tầng 4: Có 2 phòng ngủ và 1 wc chung Tầng 5: Phòng thờ, sân chơi, giặt phơi
Đơn vị thiết kế:Kiến trúc Trịnh Gia
Tổng mức đầu tư:2,5 tỷ đồng
Năm thực hiện:2019
Thông tin liên hệ:
- Công ty Cổ phần Kiến trúc Xây dựng Nguyễn Tuấn
- Liên hệ: Nguyễn Tuấn
- Phone: 0908 562 750
- Email: contact.vietblogger@gmail.com
- Website: www.vietblogger.design
Hãy liên hệ với chúng tôi để được tư vấn thi công xây dựng và thiết kế nhà ở, thiết kế biệt thự tân cổ điển, thiêt kế lâu đài kiểu pháp, thiết kế và thi công nội thất, thiết kế khách sạn, thiết kế nhà hàng, thiết kế shop, cửa hàng, showroom …







